案例分享 |上海醫大醫院門急診醫技綜合樓凈化工程完工正式投入使用
2021-11-22 作者:admin
上海醫大醫院門急診醫技綜合樓(1#-5#樓)凈化工程全新采用醫療潔凈防靜電金屬復合板,裝修設計工程范圍包括:四層手術中心、四層ICU、四層DSA、二層眼科門診、六層產房,總建設面積約4540㎡。
項目名稱:上海醫大醫院門急診醫技綜合樓(1#-5#樓)凈化工程
建設面積:4540㎡

上海醫大醫院
上海醫大醫院地處上海市青浦區倪家角路39號,建筑面積30萬平方米,醫療用房面積15萬平方米,地下車位 1286個,是本區域內最大的非營利性三級醫療機構。醫院位于虹橋國際開發樞紐、國家會展中心及長三角一體化示范區的戰略交匯地,是青浦區重點項目建設工程,醫院可將醫療服務輻射至整個上海城區乃至長三角地區。
▲上海醫大醫院正式開業
上海醫大醫院規劃床位2000張,一期開設500張,完全開放后將占青浦區醫療床位編制總量的60%。醫院設有呼吸內科、腎內科、內分泌科、婦科、骨科、耳鼻喉科、心臟外科、口腔科、急診科等20余個科室,全面滿足市民的健康需求。
同時,醫院還擁有大量省級副主委以上的醫療專家,主任、副主任醫師、醫學博士等醫師團隊,是青浦區乃至上海市高等級醫療資源的重要補充。
上海醫大醫院門急診醫技綜合樓部分凈化工程由我司承建,包括四層手術中心、四層ICU、四層DSA、二層眼科門診、六層產房在內共4540㎡,目前主體區域已完成交付,投入使用。
▲上海醫大醫院手術室介紹
項目概況
本項目為上海醫大醫院門急診醫技綜合樓(1#-5#樓)凈化工程,裝修設計工程范圍包括:四層手術中心、四層ICU、四層DSA、二層眼科門診、六層產房,總建設面積約4540㎡。詳情如下:
01 手術室
位于大樓四層,共設18間手術室,I級手術室4間,III級手術室14間(其中鉛防護手術室2間,雜交手術室1間,復合手術室1間,數字化手術室1間),及其潔凈走廊與輔助用房、污物走廊與輔助用房、辦公區及濕區等,面積約2600㎡。

02 ICU
位于大樓四層,共設負壓病房1間,單間5間,大廳21床,及其潔凈配套輔助用房、辦公區及濕區等,面積約880㎡。

03 DSA
位于大樓四層,共設鉛防護DSA手術室3間(其中手術DSA III級1間,檢查DSA IV級2間),及其輔房、辦公區及濕區等,面積約765㎡。

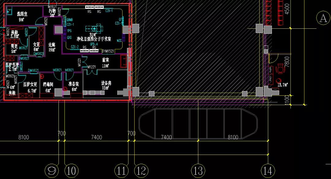
04 眼科門診
位于大樓二層,共設II級準分子激光手術室1間,洗眼室1間,輔助用房以及濕區等,面積約160㎡。

05 產房
位于大樓六層,共設III級手術室1間及輔助用房等,面積約135㎡。













